Flatbed Semi TrailerFlatbed bed container semi-Trailer, Flatbed Semi Trailer,Container Semi Trailer, Semi Trailer, Semi-Trailer, Trailer and etc.1. Tare Weight 6200kg2. Payload 35000kg3. Chassis: Heavy duty and extra durability designed I beam; Opting for high tensile steel Q345B, welded by automati......



| SPECIFICATION | |
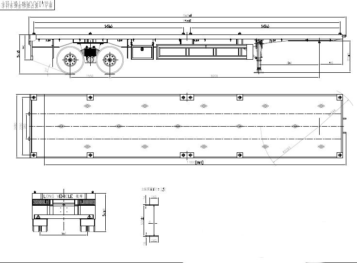
| Main Frame | Heavy duty and extra durability designed; Opting for high tensile steel Q345B, welding by automatic Submerged-Arc processes 500mm Height "I" beam, Top Flange 14mm, width 140mm; Middle Flange 6mm; Bottom Flange 16mm, width 140mm |
| Floor | Steel sheet 3mm thickness |
| Axle and suspension | L1-32Ton Bogie Suspension Assembly |
| King Pin | one unit of 2" bolt-in kingpin |
| Landing Gear | Two-speed, manual operation, heavy duty SAF 19" linked landing gear |
| Wheel Rim | 9 units of 9.00-22.5 rim, including 1 unit spare rim |
| Tire | 9units of 12R22.5 tubeless tyre, including 1 unit spare tire |
| Twist Lock | Twelve nos. four nos are fasten mode, eight nos are up-down mode, of ISO twist lock for 2x20ft, 1x40ft container, central locks can be laid down. |
| Spare Wheel Carrier | One set of spare wheel carrier including a riser. |
| Pneumatic Braking System | Two units of WABCO RE 4 relay valve; four units of T30/30 spring brake chamber; two units of T30 brake chamber, two units of reliable local brand 45L air tank; two units of reliable local brand standard coppery air-connector. |
| Electrical System | One unit of JAEGER POWAY, 24V 7-pin ISO 1185 socket; two sets of reliable, local brand standard rear light, turn light, rear reflector, side light, side reflector etc. One set of DAFA(brand) 6-core standard Cable. |
| Painting | Sand blasting before painting; one coats of primer, anti corrosion; two coat of finish painting; colour advised by client |
| Accessory | One box with a set of standard trailer tool |
Famous Brand 35-65cbm Flour Truck Bulk Cement Semi-Trailer / Powder Tank Semi-Trailer with Good Price
4 Axle Lowboylowbed Semi Truck Trailer
Cimc Huajun 3 Axle Stake Semi Trailer with Flat Wall
Low Price 3 Axle Fly Ash Powder Bulk Cement Tank Semi Trailer for Sale
3 Axle 50cbm Liquid Tank Semi-Trailer
Cimc Huajun Stake/Cargo Semi Trailer with Side Curtain